Description:
1.Pressure: the atmospheric temperature at- 19 ℃ ~ 200 ℃
2. Medium: oil (petroleum chemical raw materials, etc.)
3.Capacity: 1 m3 ~ 100 m3.
4.safety:wall ray, anti-static, fire control measures, according to the actual circumstance of engineering by unit of choose and choose and sanitation measures.
5. anti-corrosive:Tank wall anti-corrosion measures shall be determined according to the tank storage medium, the outer wall corrosion protection measures according to pot of soil.
6.Layer: the storage tank can be single layer or double layer,it depends on customer need.
7.The capacity: We offer a design and manufacture from 1000liters to 100,000 liters ,it is according to the clients’ need.
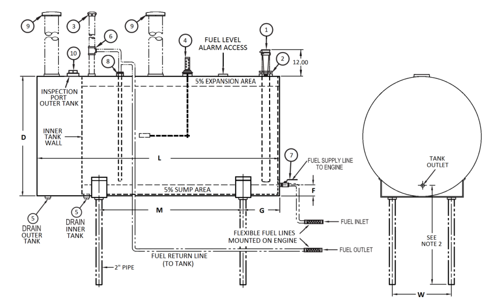
Main accessories of diesel fuel tank
8· Ø 600 mm (or different dimension if specified by the purchaser) access manhole complete with gasket and bolted cover.
9.Type: the type can be horizontal or vertical ,it depends on customer need.
Features:
1.Security: Inner – use 6 m thick steel manufacturing, only 5 mm and the thickness of the ordinary, compared to single tank strength greatly increased;
Outer – reinforced fiber glass, thickness of 2.5 m or above, good compressive shock resistance.
2 The economy is practical
diesel fuel tank service life of the oil tank 5 to 10 times that of ordinary tank, at least can ensure safe use of 30 years; The installation is convenient,fiberglass fuel tank protection needs is 1/10 of the normal oil tank, greatly save the maintenance cost.
3 Environmental protection
Double-layer structure, with 0.1 1 mm, outer FRP ensures leakage does not directly leakage pollution of soil and water.











